全国咨询热线 全国咨询热线:4008-979-878

永泰三里城 (售楼处) 首页 - 永泰三里城发卖核心

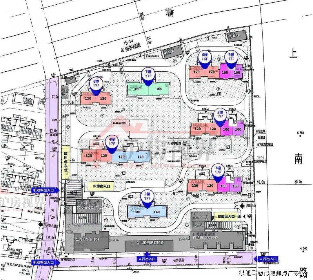
  浦东永泰三里城二期前滩·东方湾售楼处热线(开辟商同一德律风)浦东永泰三里二期城前滩·东方湾售楼处电线(预定看房热线)浦东永泰三里二期城前滩·东方湾征询热线(享限时高额返现)浦东永泰三里二期城前滩·东方湾【√√√24小时预定热线】浦东永泰三里城二期前滩·东方湾售楼处德律风一对一浦东永泰三里城二期前滩·东方湾热情办事热线(领会最新优惠)浦东永泰三里城二期前滩·东方湾开盘时间优惠力度交付时间300万-500万新房怎样选?浦东永泰三里城二期前滩·东方湾更多优惠楼盘详情?浦东永泰三里城二期前滩·东方湾4009665004最新现状。户型图。属于什么档次?浦东永泰三里城二期前滩·东方湾4009665004为什么廉价?4009665004营销处前滩东方湾,永泰三里城二期,浦东新区三林社区Z000701单位15-15A地块(“城中村”项目——三林镇村地块)。该项目容积率2。0,拟建7幢17层高层商品室第、1幢19层自持租赁房、1幢10层公共租赁(保障房),以及3层配套公建用房等这个项目占地差不多27116㎡,房子不会建得很密,容积率是2。0,最高只能盖到60米高,全数为17F的高层室第,算下来计容面积大要54232㎡。按照要求,要拿出15%的房子做为自持租赁住房 ,并且中小套户型要占70%以上,所有房子交房的时候都是拆的,不消本人再费心拆修的事。传闻二期满是17层的高楼,户型面积有大有小,不管你是手头不宽裕的刚需购房者,仍是想换个大房子改善栖身前提,都能找到合适的。4月28日,浦东新区规划和天然资本局公示了三林社区Z000701单位15-15A地块(永泰三里城二期)的规划设想方案。二期地块位于一期东侧,即15-15A地块,估计8-9月份推出,仅372套可售室第,价钱待定。。。。。。地块位于浦东三林板块焦点。总用地面积约2。71万㎡,总建建面积约9。32万㎡,容积率2。0,限高60米,绿地率35%。方案显示,拟建7幢17F高层室第、1幢19F自持租赁房、1幢10F保障房及5400㎡社区配套用房,中小套型室第(≤120㎡)占比70%。室第结构:二期全数规划为17F的高层室第,共计7幢,楼间距颠末细心设想,充实考虑了居平易近的现私取栖身舒服度,确保各楼层住户都能享遭到充脚的阳光取宽阔的视野。配套建建:除了室第建建外,还规划有1幢19F自持租赁房、1幢10F保障房及 5400㎡社区配套用房。社区配套用房将进一步丰硕社区的办事功能,涵盖社区勾当核心、老年勾当室、儿童逛乐区等多种功能空间,满脚分歧春秋段居平易近的日常勾当需求。总价600-800万之间,当下抢手板块无外乎唐镇、高行等板块,中外环仅能选择更为偏僻的御桥、外高桥等区域。永泰三里城位于三林板块腹地,筠溪小镇、新杨思都属于浦东金色中环带上的主要构成部门。前滩地方商务区的栖身需求势必会外溢,三林滨江本身具有低密、宜居的属性,地方商务区+低密栖身区的黄金组合,将三林滨江的价值高度推向颠峰。三林滨江的热度众目睽睽,室第价钱正在10万/㎡+,别墅价钱高达13。38万/㎡,且板块价值已深切。不只如斯,项目周边具有中环、外环、杨高南等从干道,自驾前去浦西市区、陆家嘴、张江等都很是便当。取规划中的三林滨江判然不同,永泰三里城所正在的三林社区,是三林现有栖身空气更为成熟的片区,周边城市资本已然很是醇熟。更难能宝贵的是,项目是超30万方河边大城,周边皆是规划室第用地,等全体建成后,将大幅度提拔周边城市界面。项目周边有比力成熟的学校和贸易配套,好比中房金谊广场、新达汇·三林、上海三林中学、上海市育人中学等。这里有前滩太古里、前滩31、浦发银行东方体育核心、前滩休闲公园、前滩体育公园、前滩友城公园等。项目容积率仅2。0,是上海中外环相当臻稀的双面滨河、低密社区,规划有16-19层高层,6层电梯洋房。为业从们带来高质量物业办事。仁恒的物业办事水准业表里的承认度都很是高,荣膺中国金钥匙6S办理立异、中国物业办理分析实力百强等诸多殊荣。永泰三里城二期从推320套房源,建面约99-151㎡高层,建面约140-241㎡洋房/叠加。。更高的层高意味着更宽阔的栖身空间,也意味着投入更多的建建成本,这背后是开辟商不吝价格为业从一步到位的考量。,是国内绿色建建高尺度,健康从导之上,起到降噪、少尘等的防护结果,细节讲求质量有保障!项目拆修尺度也是诚意满满,浦东永泰三里二期城前滩·东方湾售楼处电线【浦东永泰三里二期城前滩·东方湾开辟商售楼核心热线】浦东永泰三里二期城前滩·东方湾营销核心热线浦东永泰三里二期城前滩·东方湾售楼处地址4009665-004,浦东永泰三里二期城前滩·东方湾售楼处德律风楼盘项目全面引见,业从评论?4009665004实正在评价?是学区房吗?浦东永泰三里二期城前滩·东方湾都是住什么人?400 966 5004发布 浦东永泰三里二期城前滩·东方湾新 优错误谬误 400 9665 004利弊?浦东永泰三里二期城前滩·东方湾本电线楼盘项目正在哪里浦东永泰三里二期城前滩·东方湾(包含楼盘简介,均价,浦东永泰三里二期城前滩·东方湾房价,现房,期房,别墅,叠墅,大平层,价钱,浦东永泰三里二期城前滩·东方湾楼盘地址,户型图,交通规划,存案价,存案名,浦东永泰三里二期城前滩·东方湾400 9665 004项目配套,样板间,开盘时间,认筹时间,楼盘详情,浦东永泰三里二期城前滩·东方湾售楼处德律风,最新动静,最新详情,400 9665 004是学区房吗?周边配套,浦东永泰三里二期城前滩·东方湾一房一价,400 9665 004最新进展等详情征询)楼盘详情丨价钱丨400 9665 004更多优惠丨机不成失丨欢送致电丨诚邀品鉴!售楼处丨特价房丨工抵房丨残剩房源丨户型图丨最新动静丨免责声明:将文章内容分析来历于收集、只做分享,版权归原做者所有!!若有侵权,请联系我们,我们第一时间处置若有问题欢送来电征询,专业一对一热情办事,让您用专业目光去买房。若是您想领会更多楼盘详情,欢送提前预定拨打正在房产买卖市场中,无论是初次置业的新手,仍是预备改善住房的购房者,控制专业的房产学问都至关主要。做为一名从业多年的房产中介,我将从购房前预备、选房要点、买卖流程、风险规避等多个维度,为你梳理房产学问干货,帮力你正在购房上少走弯。购房者需要先明白本人的购房目标。是刚需自住,为了具有不变的居处;仍是改善栖身,逃求更大的空间、更好的栖身;亦或是投资,期望房产实现保值增值。分歧的购房目标,对应着分歧的选房侧沉点。好比刚需购房者更沉视衡宇的价钱、交通便当性和周边根本糊口配套;投资型购房者则更关心房产的区位成长潜力、房钱报答率等。1。首付款计较:领会本地的首付比例政策,一般首套房首付比例正在20%-30%摆布,计较出本人可以或许承担的首付款金额,例如打算采办一套总价200万的房子,若首付比例为30%,则首付款为60万。2。贷款能力评估:向银行或金融机构征询贷款政策,评估本人的还款能力。一般来说,银行会要求购房者的月还款额不跨越其月收入的50%。能够利用贷款计较器,测算分歧贷款金额、贷款年限下的月供金额,连系本身收入环境,确定合理的贷款额度和贷款年限。3。其他费用预算:除了首付款和贷款,购房还会发生契税、维修基金、物业费、中介费(若是通过中介购房)等费用。契税按照衡宇面积和购房套数分歧,税率正在1%-3%不等;维修基金凡是按照衡宇总价的必然比例缴纳。提前领会这些费用,做好资金预算,避免呈现资金缺口。1。地段价值:地段是决定房产价值的环节要素之一。焦点地段的房产,凡是交通便当、配套完美、成长成熟,具有较强的保值增值能力。例如城市的核心商务区、政务区,以及新兴的沉点成长区域,都是比力优良的地段选择。2。交通配套:优先选择接近地铁、公交枢纽的楼盘,便利日常出行。对于有私人车的购房者,要关心周边道的规划和交通拥堵环境,以及小区的泊车位配比能否充脚。3。糊口配套:调查楼盘周边的贸易、教育、医疗、休闲等配套设备。大型购物核心、超市能够满脚日常购物需求;优良的学校资本对于有后代教育需求的家庭尤为主要;病院的距离和医疗程度关系抵家人的健康保障;公园、广场等休闲场合则能提拔栖身的舒服度。1。开辟商品牌取口碑:选择出名且诺言优良的开辟商,其开辟的楼盘正在衡宇质量、施工进度、物业办事等方面更有保障。能够通过收集搜刮、业从论坛、实地调查等体例,领会开辟商过往项目标评价和口碑。2。楼盘规划取:关心楼盘的容积率、绿化率、楼间距等目标。容积率低、绿化率高的小区,栖身密度小,漂亮;楼间距大则能充脚的采光和通风。此外,还要领会小区的内部配套设备,如长儿园、健身设备、社区勾当核心等能否完美。3。户型选择:按照家庭生齿数量和栖身需求,选择合适的户型。户型朴直、南北通透、结构合理的房子更受欢送。要留意房间的功能分区能否科学,动静分区能否明白,卧室、客堂、厨房等空间的尺寸能否合理,能否有华侈面积等问题。1。合同条目审查:细心阅读购房合同的每一项条目,沉点关心衡宇根基消息(如地址、面积、户型等)、价钱条目、付款体例及时间、交房时间、违约义务等内容。对于不睬解或有疑问的条目,及时向开辟商或中介征询,需要时能够寻求律师的帮帮。2。弥补和谈:若是开辟商有弥补和谈,同样要认实审查。弥补和谈中的条目可能会对两边的权利发生主要影响,避免呈现不合理的附加前提或加沉购房者义务的条目。1。预备贷款材料:一般需要供给身份证、户口本、成婚证(已婚人士)、收入证明、银行流水、征信演讲等材料。确保材料实正在、完整、无效,以提高贷款审批的通过率。2。选择贷款银行:分歧银行的贷款利率、贷款政策、审批速度等可能存正在差别。能够多征询几家银行,比力利率优惠、贷款额度、还款体例等,选择最适合本人的银行打点贷款。3。贷款审批取放款:提交贷款申请后,银行会对购房者的天分进行审核。审核通事后,两边签定贷款合同,银行会按照商定的时间将贷款发放给开辟商或卖方。1。验收预备:交房前,购房者能够预备好相关东西,如卷尺、小锤子等,用于检屋的尺寸、墙面地面能否空鼓等问题。同时,领会衡宇验收的尺度和流程。2。实地验收:按照合同商定的交房时间,前去楼盘进屋验收。沉点检屋的质量问题,如墙面能否渗水、裂痕,门窗能否密封优良、开关矫捷,水电线能否一般,厨卫防水能否到位等。发觉问题及时记实,并要求开辟商整改。3。打点交付手续:验收及格后,购房者需要缴纳相关费用,如物业费、契税等,然后打点衡宇交付手续,领取衡宇钥匙,完成衡宇交代。1。核实产权消息:正在购房前,必然要到本地的不动产登记核心查询衡宇的产权消息,确认衡宇产权能否清晰,能否存正在典质、查封、共有权人等环境。避免采办到产权有胶葛的衡宇。2。小产权房:小产权房是指正在农村集体地盘上扶植的衡宇,未缴纳地盘出让金等费用,其产权证不是由国度房管部分颁布。小产权房存正在诸多风险,如无理产权证书、不克不及上市买卖、面对拆迁可能得不到合理弥补等,购房者不要采办。1。关心市场动态:房地产市场受政策、经济、供需关系等多种要素影响,价钱会有波动。购房者要关心国度和处所的房地产政策变化,如限购、限贷、限售政策,以及利率调整等,领会市场的走势,合理选择购房机会。2。购房:不要盲目跟风购房,避免正在市场过热时高价买入。要按照本人的现实需乞降经济实力,做出的购房决策。控制这些房产学问,能让你正在房产买卖中愈加从容自傲。若是你正在购房过程中有任何疑问,欢送随时征询,我将竭诚为你供给专业的办事和。